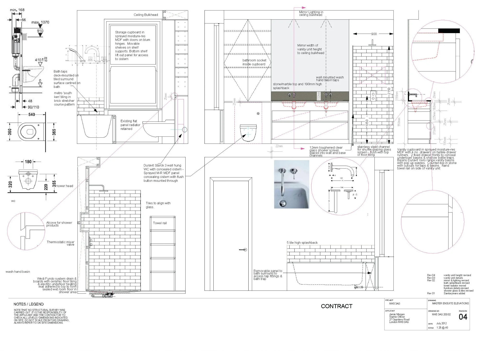
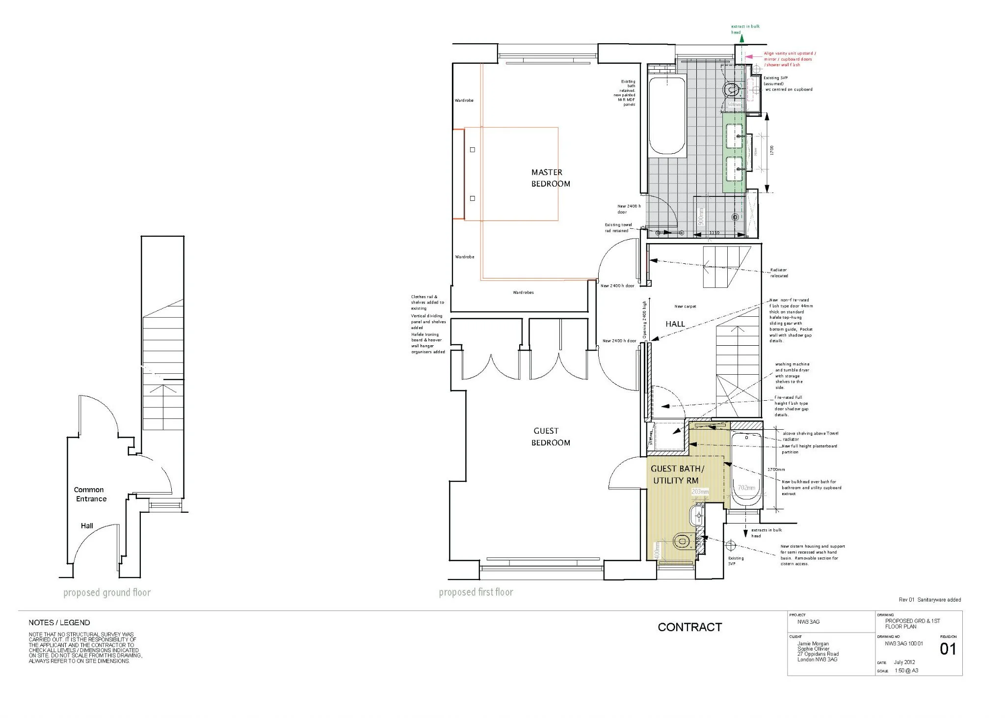
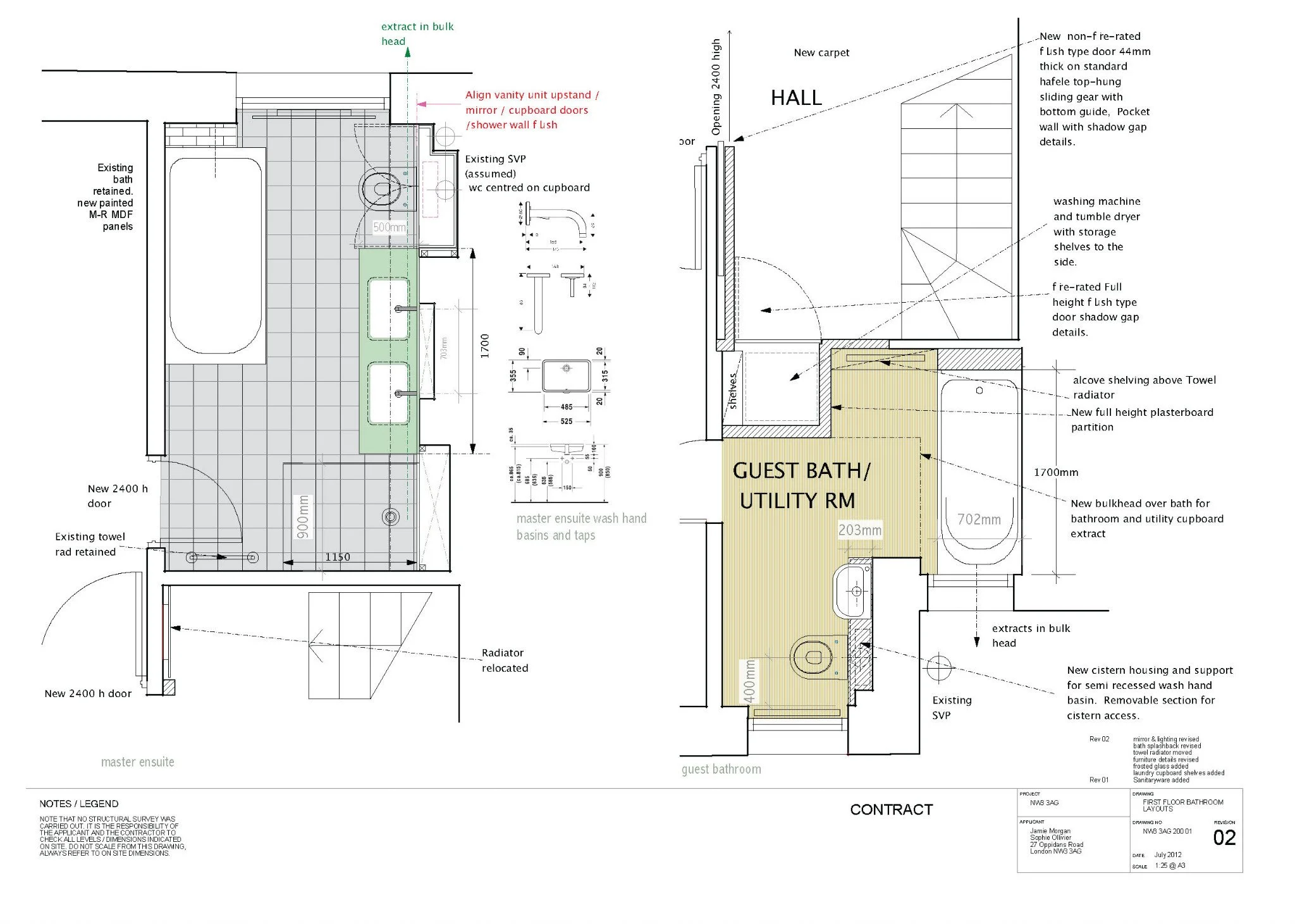
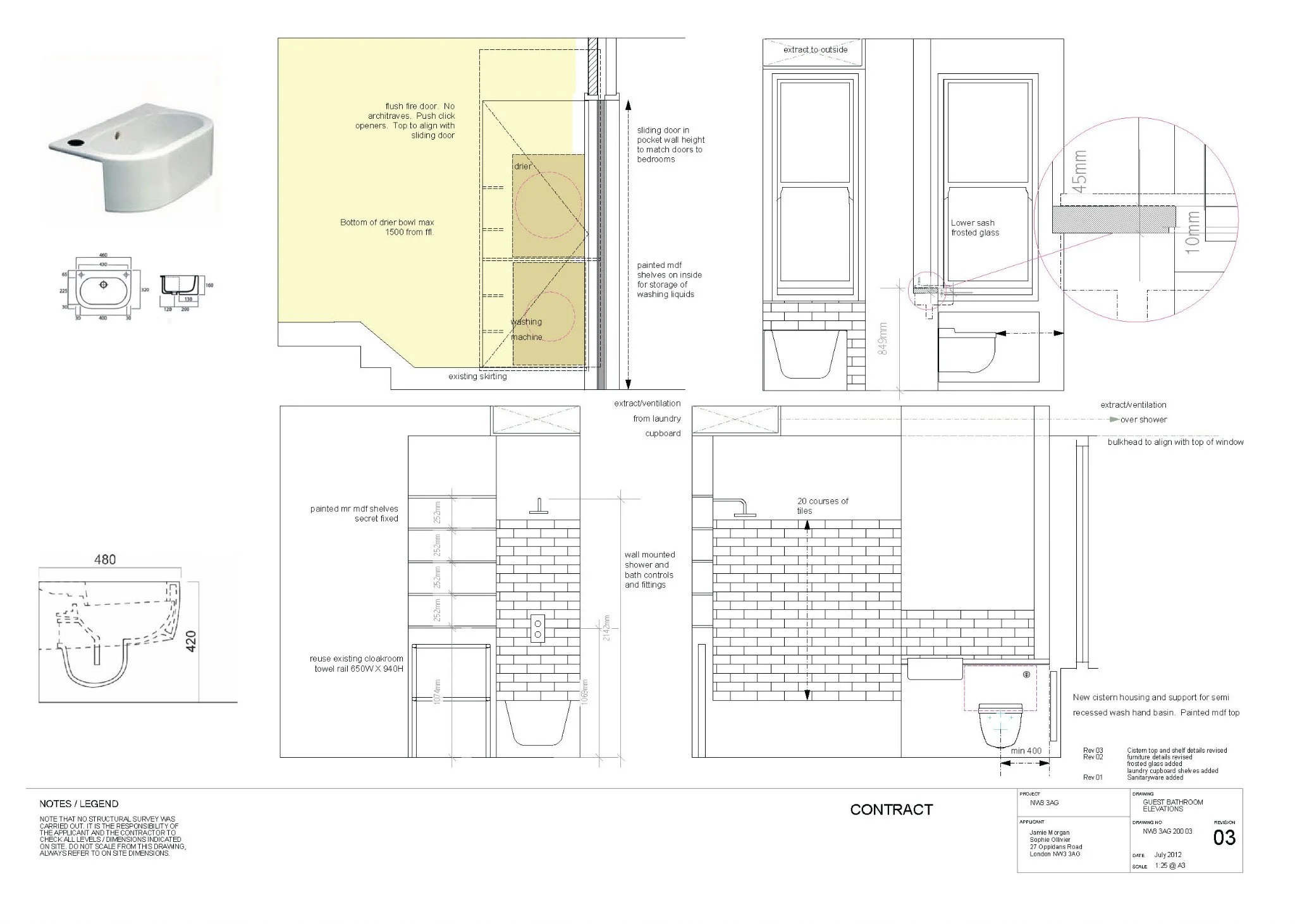
Interiors, kitchens, bathrooms, staircases and storage
Key elements in any domestic project revolve around the kitchen and bathroom. Staircases and storage make up key joinery items.
Camden Mews Kitchen - Ikea hack using reclaimed timber worktops
Primrose Hill kitchen
Vinyl storage + equipment worktop
Cotham interior